965 W Maumee StreetAdrian City, MI 49221
Due to the health concerns created by Coronavirus we are offering personal 1-1 online video walkthough tours where possible.




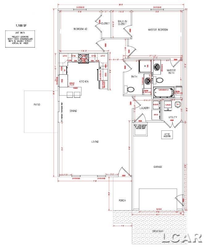
Scott Cove Condominiums! One of 5 condos in Sought-After Scott Cove! New Build Stand-Alone Condos with Summer 2026 Move-in! Skillfully Constructed by Ruttkofsky Builders with construction underway and still time to choose your colors, style and finishes to make this your custom new home. Whether you're downsizing, rightsizing, buying your first home, or seeking a low-maintenance lifestyle, this stand-alone condo offers modern living at its finest! Exclusive Scott Cove community with West Side Adrian location close to shopping, dining, restaurants, and parks. Relax and let the well-organized and low-fee association manage the mowing, plowing, building and exterior maintenance. Beautifully Crafted with KraftMaid cabinets, quartz counters, wood flooring, and energy efficient materials and mechanicals. Just the right fit with 2 bedrooms, 2 bathrooms, spacious primary bedroom/bath, open living area, kitchen with peninsula, and attached garage! Contact us today to proficiently Design and Plan for your New Home!
| 21 hours ago | Listing first seen on site | |
| 21 hours ago | Listing updated with changes from the MLS® |
IDX provided courtesy of Realcomp II Ltd. via LenaweeCountyAssociationofREALTORS. Copyright © 2026 Realcomp II Ltd. Shareholders.
IDX information is provided exclusively for consumers' personal, non-commercial use and may not be used for any purpose other than to identify prospective properties consumers may be interested in purchasing and that the data is deemed reliable but not guaranteed accurate by the MLS.
